Method for the production of cement clinker by processing accumulated carbon dioxide in order to form methanol
(22) 29.07.2024
(43) 13.02.2025
(57) The invention relates to a method for producing cement clinker by processing accumulated carbon dioxide in order to form methanol, having the steps of pre-heating a raw meal made of silicate-containing and lime-containing rock in a pre-heater, calcinating the raw meal in a calciner (120), sintering the calcinated raw meal in a rotary furnace (130), the exhaust gas of the rotary furnace (130) reaching the calciner (120) and flowing on from there into the pre-heater, and cooling the sintered cement clinker in a clinker cooler (140), wherein a first portion of...
(22) 29.07.2024
(43) 13.02.2025
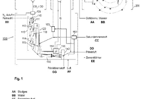
(57) The invention relates to a method for producing cement clinker by processing accumulated carbon dioxide in order to form methanol, having the steps of pre-heating a raw meal made of silicate-containing and lime-containing rock in a pre-heater, calcinating the raw meal in a calciner (120), sintering the calcinated raw meal in a rotary furnace (130), the exhaust gas of the rotary furnace (130) reaching the calciner (120) and flowing on from there into the pre-heater, and cooling the sintered cement clinker in a clinker cooler (140), wherein a first portion of the cooling air from the clinker cooler (140), in the form of primary air, flows in a rotary furnace burner (135) in order to heat the rotary furnace (130), a second portion of the cooling air from the clinker cooler (140), in the form of tertiary air, flows to the calciner (120) via a tertiary air line (150). and a third portion of the cooling air is ejected from the clinker cooler (140) as exhaust air or is used to dry electrolysis sludge. The exhaust gas from the pre-heater flows completely or partly and directly or indirectly into a reactor (220) in order to produce methanol (CH3OH) from the carbon dioxide (CO2) and carbon monoxide (CO) contained in the exhaust gas in that the exhaust gas is reacted with hydrogen (H2) in the reactor (220). According to the invention, a high-temperature electrolysis cell (210) is heated with heat from the aforementioned method in order to generate hydrogen (H2) from a pre-heated electrolyte so that the electrolyte is heated to a temperature between 100 °C and 850 °C.
(71) KHD Humboldt Wedag GmbH; 51149 Köln (DE)
(84) ARIPO (BW, CV, GH, GM, KE, LR, LS, MW, MZ, NA, RW, SC. SD, SL, ST, S7, T7, UG, 7M, 7W), Eurasian (AM, AZ, BY, KG, KZ, RU, TJ, TM), European (AL, AT, BE, BG. CII, CY, CZ, DE, DK, EE, ES, FI, FR, GB, GR, HR, HU. IE, IS, IT, LT, LU, LV, MC, ME, MK, MT, NL, NO, PL, PT, RO, RS, SE, SI, SK, SM, TR), OAPI (BF, BJ, CF, CG, CI, CM, GA, GN, GQ. GW, KM, ML, MR, NE, SN, TD, TG).
