Filtration plants: In search of the right concept
Summary: The transition from modernisation of an existing dust removal installation to a new installation is fluent. A modernisation can be so extensive that, apart from essential basic components – such as the filter housing – all components are new and the operator of the cement plant essentially has of a completely new installation. The fact that the costs of modernising a plant are usually much lower than those for investing in a new one indicates that there are greater opportunities for modernisation in the current climate of austerity programs.
When it comes to determining the most suitable modernisation concept for dust removal processes in the cement manufacturing industry, it is necessary to take into account all the boundary conditions and choose the type which will best fulfil all the different aims. Each concept is primarily developed based on a thorough evaluation of the situation. In this process, the cooperation between plant operator, plant engineer and filter specialist is essential. Which of the dust removal supplier‘s solutions best fulfil the aims of the plant operator is determined together.
When it comes to determining the most suitable modernisation concept for dust removal processes in the cement manufacturing industry, it is necessary to take into account all the boundary conditions and choose the type which will best fulfil all the different aims. Each concept is primarily developed based on a thorough evaluation of the situation. In this process, the cooperation between plant operator, plant engineer and filter specialist is essential. Which of the dust removal supplier‘s solutions best fulfil the aims of the plant operator is determined together.
For both new installations and modernisations, cement plant operators tend to opt for modern bag filter technology. A higher precipitation level and insensitivity to fluctuations in the gas volume, dust load and dust particle size constitute the triumphant success of high-performance bag filters. Where alternative fuels are used and strict regulations by authorities are in place, electrostatic precipitators are not able to adhere to emissions values. Especially with regard to residual dust content, the superior technology of bag filters has long since cancelled out the benefits of electrostatic precipitators.
With a series of successful modernisation concepts, IntensivFilter has proved that conversions to bag filters meet the expectations of cement plant operators (Figs. 1–3). With the
Intensiv-Filter concept virtually any electrostatic precipitator can be converted to a bag filter. The typical conversion is carried out in several steps:
– Removal of the high voltage power supply as well as the interior equipment of the electrostatic precipitator until just the exterior walls remain
– Installation of the baffle plates, filter head modules, partitions and clean gas channels
– Installation of a weather-proof casing (penthouse) if necessary
– If necessary modification work on the ducts as well as on the dust transport system
– Installation of the maintenance doors, gangways and ladders
– Installation of the filter elements
– Installation of the cleaning system
With conversion concepts, the question often arises as to whether the new clean gas area should be placed in the interior of the existing electrostatic precipitator housing or on top of it. This decision is tied to the amount of gas to be filtered, the size of the existing electrostatic precipitator installation and the maximum length of the filter bags.
The installation downtime is of particular significance for modernisation projects. The time requirement depends, like the whole conversion project, on each individual situation. In order to experience no surprises during and after the changeover phase, nothing must be left to chance. Detailed plans which are supported by CFD simulations in advance are standard procedure at Intensiv-Filter. With such planning, the conversion can take place during the regular downtimes; unscheduled downtime is not necessary. Intensiv-Filter has successfully performed numerous conversions in the regular winter downtime.
Each conversion has its own prerequisites and requires a tailor-made concept. From the variety of modernizations that have been carried out by Intensiv-Filter, three examples with different requirements and design solutions are presented.
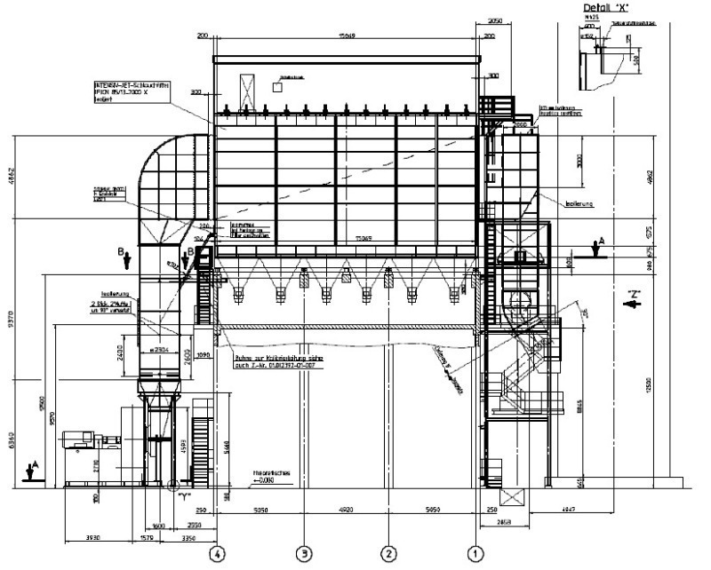
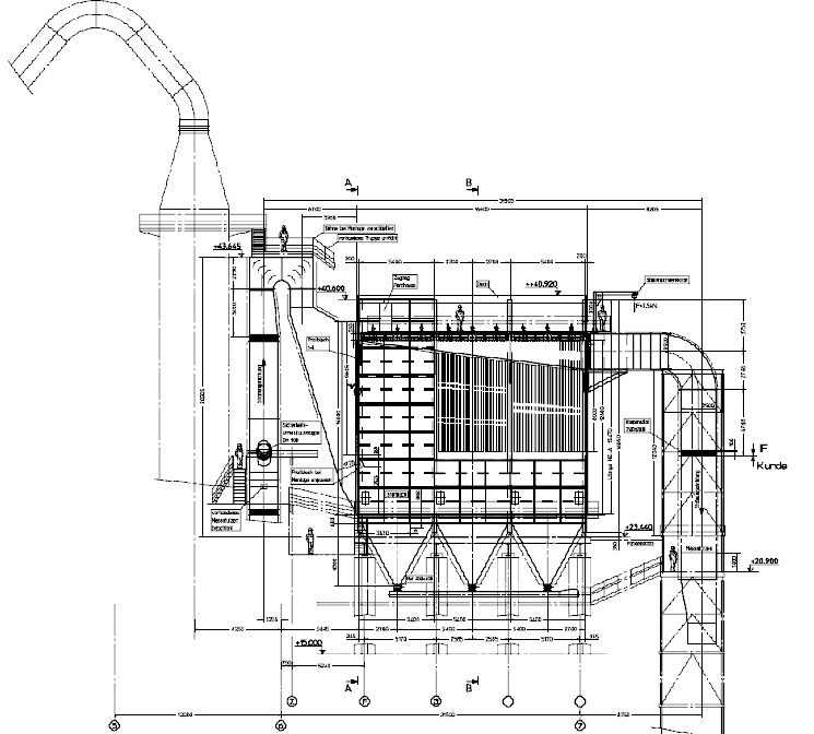
A typical case is the upgrading to a bag filter for the kiln/raw mill dedusting at Deuna Zement GmbH/Germany (Fig. 4). Besides the continuing use of the existing electrostatic precipitator housing to a large extent, the aim of the upgrade was to achieve a filter surface load of 1.0 m3/m2 · h (Table 1). Unlike conventional electrostatic precipitator conversions, the raw gas chamber was fitted entirely with bags. Due to the spatial restrictions, both the raw gas inlet and the bag inflow had to be optimized. To achieve this, a lamella system specially developed by Intensiv-Filter was used. Besides reducing inflow speed, this solution made it possible to achieve uniform distribution of the volume flow to the bag packages. The measures were validated using extensive flow simulations for the different optimisation variants. The high-efficient Intensiv-Filter cleaning system is supported by the consequential reduction of the upward flow between the bags. Further advantages of the flow optimisation include a significant reduction of the filter resistance and the operating costs associated with this. In addition to this, the dust loss was promoted due to uniformly velocity distribution throughout the raw gas chamber.
The roof was removed from the existing electrostatic precipitator housing and Intensiv-Filter head modules known as compartments were welded on. The compartments were then insulated on the clean gas side and equipped with pneumatic shut-off valves which are activated automatically as well as being externally accessible for maintenance purposes. The clean gas side of the filter was connected at each side to the existing clean gas duct work and the filter fan. Access is via the remaining, upper section of the electrostatic precipitator housing – a penthouse design with a weatherproof roof. The existing electrostatic precipitator outlet was removed and then sealed with a new insulated housing wall. There was no need to convert the dust discharge system.
As part of the regular winter downtime, approx. 130 t of electrostatic precipitator materials were dismantled and scrapped after which the prefabricated bag filter components were fitted - an operation which caused quite a stir. After a total of six weeks of assembly and commissioning work, the new filter was put into operation.
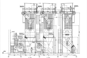
At the Dyckerhoff Group‘s cement plant in Nowiny/Poland (Fig. 5), the electrostatic precipitators for kiln/raw mill lines 1 and 2 were replaced with efficient Intensiv-Filter bag filters. The reasons for the modernisation were the high emission values of the electrostatic precipitator technology which was in use and the desire to profit from the advantages of bag filter installations. With emission values of 50 mg/m³ n. c. (normal condition) and more in peak for the dedusting of the kiln exhaust gases of two raw mills, the performance threshold of the electrostatic precipitators had been reached (Table 2) Further increase in volume flow were inevitably impossible with the existing technology, making an upgrade imperative. Intensiv-Filter was given the task of coming up with suitable solutions. In 2003 Dyckerhoff Polska – at that point still known as Cementownia Nowiny – commissioned Intensiv-Filter with the conversion. In a first step the electrostatic precipitator for raw mill line 2 had to be retrofitted. The commissioning already took place in 2004. When the contract was awarded for converting line 2, the operator and Intensiv-Filter had already agreed on the upgrade of kiln line 1. The switch-over to the new bag filter for line 1 took place a few months ago.
When designing the new bag filter for dust removal of kiln
line 2, a cost-effective option with the further use of the old electrostatic precipitator housing, the dust collection hopper and the dust discharge system was chosen. The roof of the electrostatic precipitator housing and the interior were removed. In order to mount the filter heads, a new frame construction was welded into the interior of the housing shell.
Since the existing gas conditioning tower could maintain an operating temperature of 120 °C, high-temperature-resistant filter materials were not necessary and a tried and tested polyacrylnitrile material was chosen. To protect the filter material from possible damage due to temperatures resulting from operating malfunctions prior to the bag filter, a decision was made to use additional air dilution dampers. This ensured a safe temperature within the filtering installation.
The downtime for the modernisation of kiln line 1 was
10 weeks – just under 2 weeks for the removal of the internal components and 8 weeks for the actual conversion. The technical requirements of line 2 formed the basis for the second filtering installation. However, the bag length was increased to 8 m. Consequently the cleaning for line 1 could be even further increased. As with line 2, the design was laid out for an operating temperature of 120 °C, which was likewise achieved by the existing gas conditioning towers. In this case too, there was no need for high-temperature resistant filter media. In addition to this change compared to the first implemented retrofit, the duct work was enlarged, fresh air cooling expanded and the capacity of the ventilator increased. For this installation too, the bag filter, the dust transport system and bunker were integrated into the housing of the former electrostatic precipitator. Therefore considerable savings on conversion costs could be achieved once more.
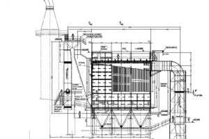
In 2007, the electrostatic precipitator at the Dyckerhoff Group’s Geseke/Germany plant (Fig. 6; Table 3) was replaced with a high-performing, energy-efficient bag filter. The existing electrostatic precipitator located after the rotary kiln was not further able to comply with the legally specified limits. In addition to the optimised procedure for reducing dust emissions, Intensiv-Filter also implemented a cost-effective option. At the location of the old electrostatic precipitator a completely new housing was attached to the existing dust collection hopper. All the existing dust transportation systems could continue to be used. The conversion time was kept to a minimum using prefabricated modules and a pre-assembled filter housing. Within the space of five weeks during downtime that had already been scheduled, the equipment was installed, connected and commissioned.
The characteristics of the bag filter used are distinguished by the following key data:
– Cleaning at low pressure and in a semi-offline procedure
– Glass bags with PTFE membrane measuring 7 m in length
– Cleaning control system with the JetBus Controller®
The filter bags are cleaned by a periodic compressed air pulse at pressures of 0.15 to 3.5 MPa, depending on the filter differential pressure. At the Dyckerhoff cement plant in Geseke, a customized nozzle system from Intensiv-Filter was used. This significantly improved the cleaning effectiveness. The Intensiv-Filter nozzle system cleans the filter bags perfectly and economically, thereby protecting the filter media.
Due to the high efficiency of the nozzle injector and by adjusting the cycle time or the cleaning pre-pressure using the JetBus Controller®, the compressed air consumption could be significantly reduced and major savings were achieved.
The realisation of modernisation projects requires both an understanding of the manufacturing process and a high level of experience in the field of dust removal. Thus it is necessary , even with small projects, that the plant engineer deals with all the detailed questions and the challenges they bring, finds a solution and ensures a dialogue between all points of contact. This is in addition to a high degree of expertise and experience, a great interest in the individual project and a high level of motivation with regard to the customer. Such commitment reflects therefore a particular service readiness, which is necessary for the successful outcome of modernisation projects.
The modern design possibilities described for the cement plants in Deuna, Nowiny and Geseke are prime examples of the conversion and modernisation projects of Intensiv-Filter. On the basis of the specific customer conditions, each filtering installation represents a complex waste gas cleaning installation in which process engineering solutions are required and implemented. In order to design the gas cleaning installations and to realise the optimum solution, it is essential to be familiar with the details of each procedure and to specify the parameters in consultation with the operator. The planning of a gas cleaning installation for a specific requirement is only possible when all the facts are known that are relevant to the measurements, operating methods and selected materials. When implementing the set tasks, Intensiv-Filter combines the expertise with the will to provide the optimum solution to the customer and could therefore successfully implement so many modernisation projects.
Überschrift Bezahlschranke (EN)
tab ZKG KOMBI EN
This is a trial offer for programming testing only. It does not entitle you to a valid subscription and is intended purely for testing purposes. Please do not follow this process.
This is a trial offer for programming testing only. It does not entitle you to a valid subscription and is intended purely for testing purposes. Please do not follow this process.
tab ZKG KOMBI Study test
This is a trial offer for programming testing only. It does not entitle you to a valid subscription and is intended purely for testing purposes. Please do not follow this process.
This is a trial offer for programming testing only. It does not entitle you to a valid subscription and is intended purely for testing purposes. Please do not follow this process.
