Methods and compositions
for concrete production
(22) 24.11.2015
(43) 21.04.2016
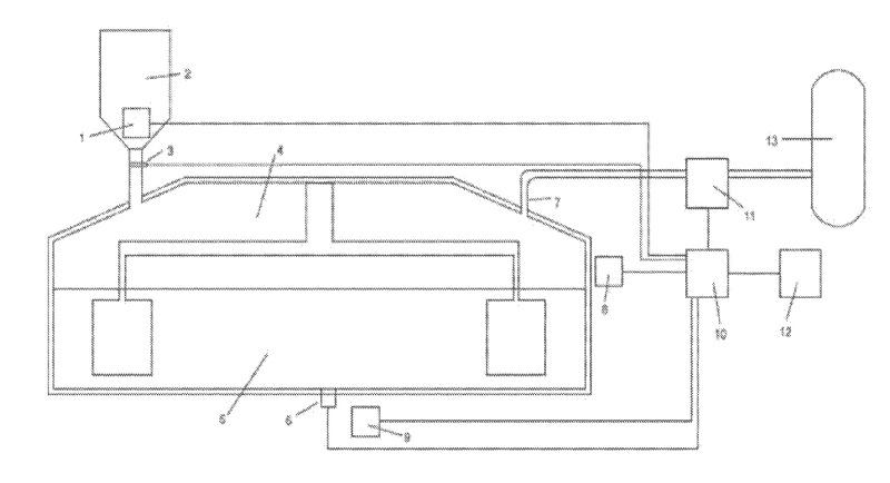
(57) The invention provides compositions and methods directed to carbonation of a cement mix during mixing. The carbonation may be in a stationary mixer or a transportable mixer, such as a drum of a ready-mix truck.
(71) CarbonCure Technologies Inc., Dartmouth (CA)
(22) 24.11.2015
(43) 21.04.2016
(57) The invention provides compositions and methods directed to carbonation of a cement mix during mixing. The carbonation may be in a stationary mixer or a transportable mixer, such as a drum of a ready-mix truck.
(71) CarbonCure Technologies Inc., Dartmouth (CA)
